265 Raintree Dr, Danville, IN 46122
Toggle Navigation
Images
Videos
Floor Plans
Map
265 Raintree Dr
Danville, IN 46122
Scroll to Content
Images
Slideshow
Photo Grid
Hide
Previous
Next
Show more
Videos
Content Coming Soon
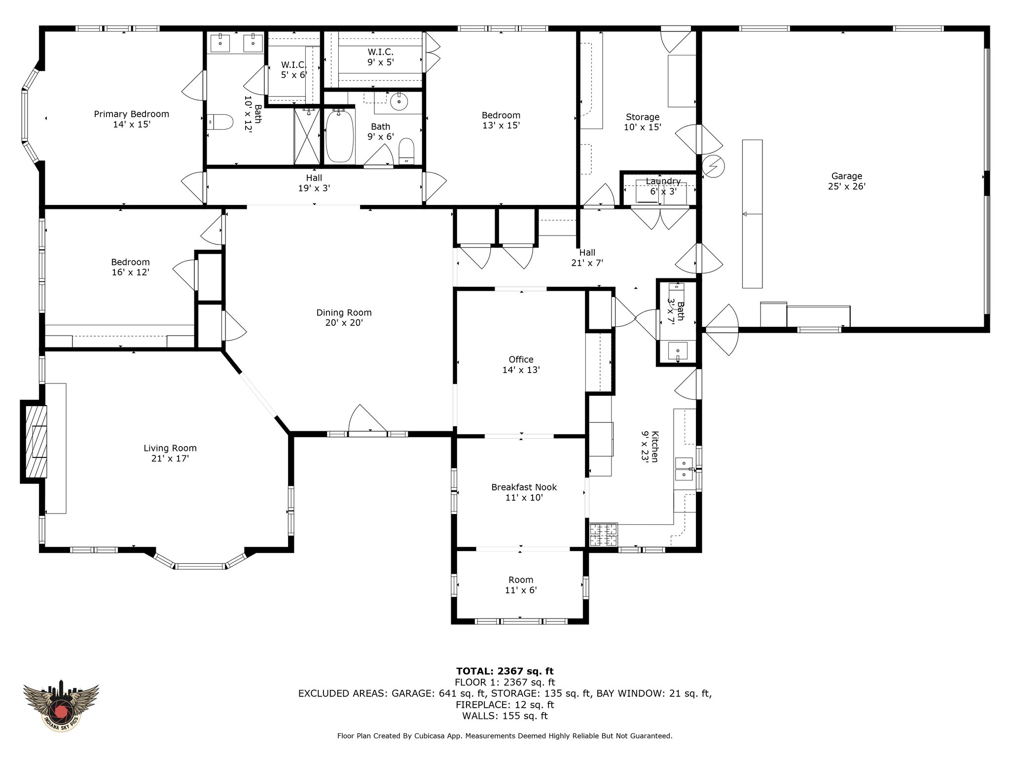
Floor Plans
Slideshow
Photo Grid
Hide
Previous
Next