11617 Brook Bay Ln, Indianapolis, IN 46229
Toggle Navigation
Images
Videos
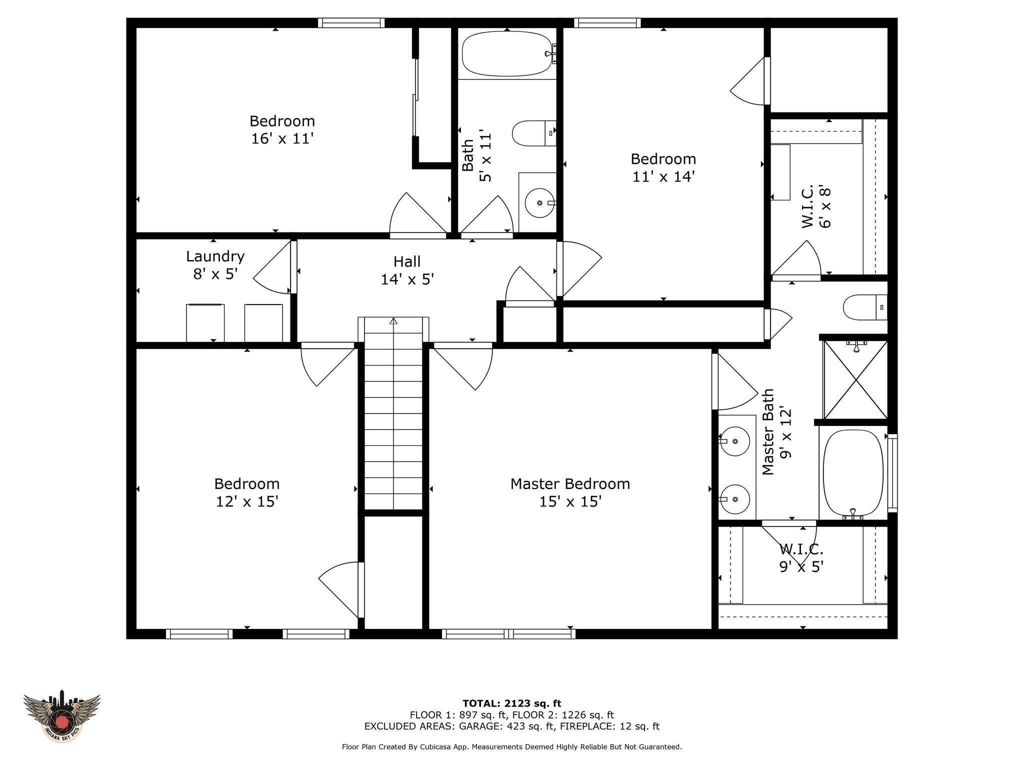
Floor Plans
Map
11617 Brook Bay Ln
Indianapolis, IN 46229
Scroll to Content
Images
Slideshow
Photo Grid
Hide
Previous
Next
Show more
Videos
Floor Plans
Slideshow
Photo Grid
Hide
Previous
Next