2105 N 500 W Rd, Muncie, IN 47304
Toggle Navigation
Images
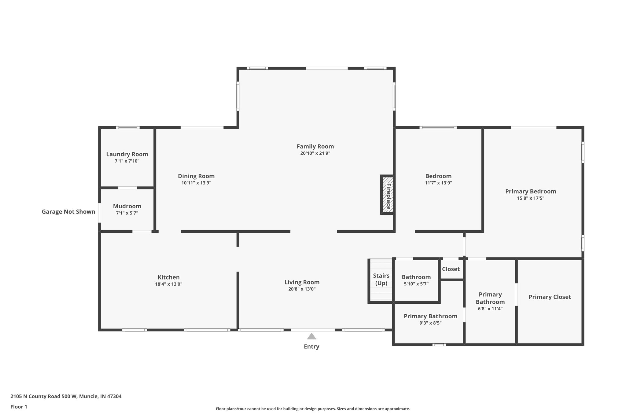
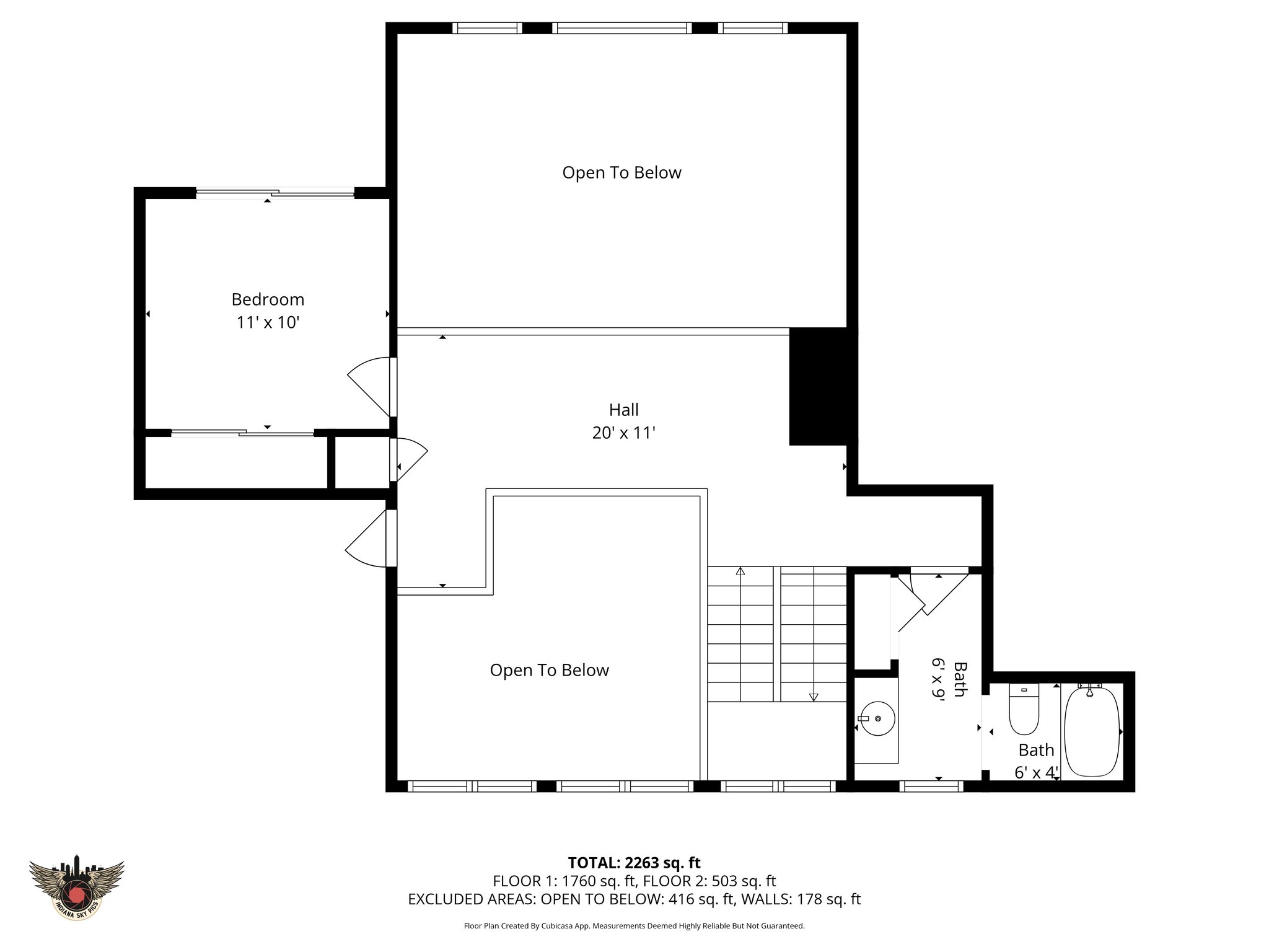
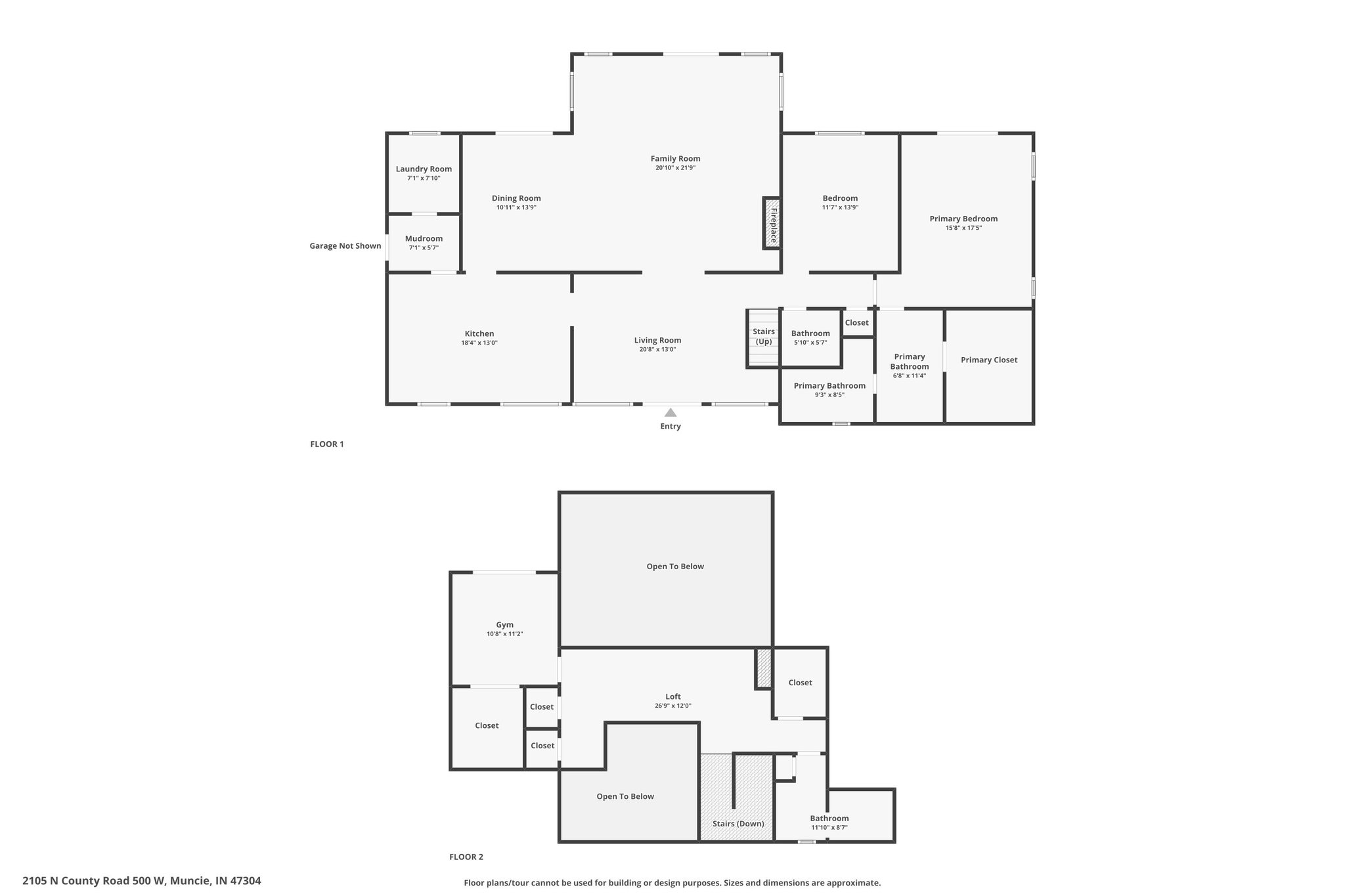
Floor Plans
3D Tour
Map
2105 N 500 W Rd
Muncie, IN 47304
Scroll to Content
Images
Slideshow
Photo Grid
Hide
Previous
Next
Show more
Floor Plans
Slideshow
Photo Grid
Hide
Previous
Next
3D Tour