2425 Silver Ln Dr, Indianapolis, IN 46203
Toggle Navigation
Images
Floor Plans
Map
2425 Silver Ln Dr
Indianapolis, IN 46203
Scroll to Content
Images
Slideshow
Photo Grid
Hide
Previous
Next
Show more
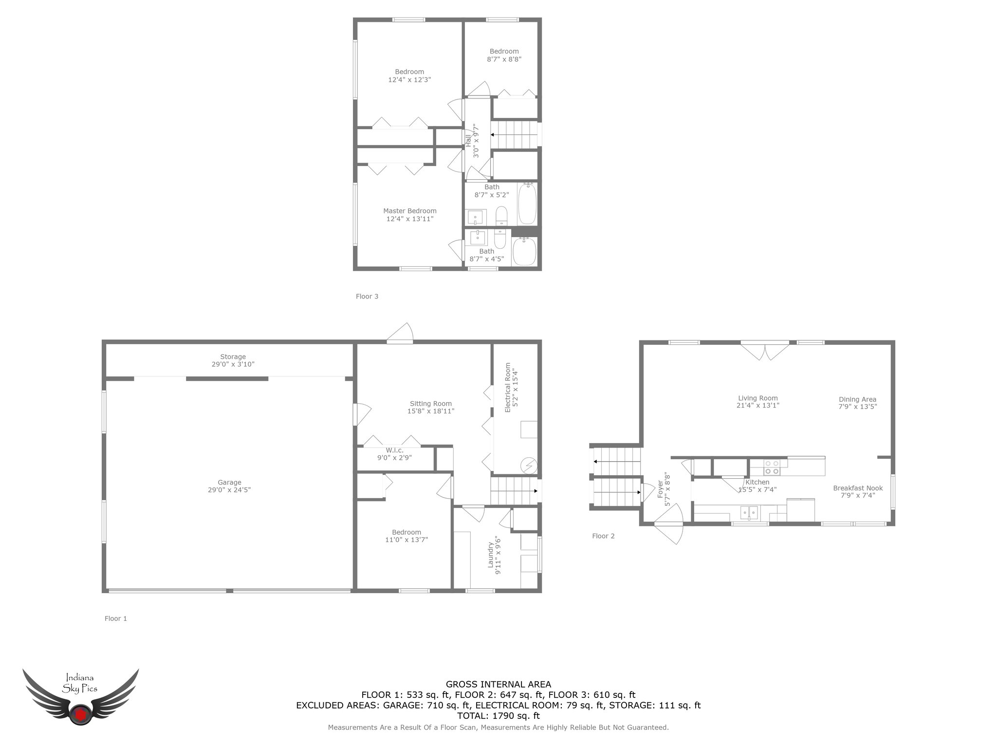
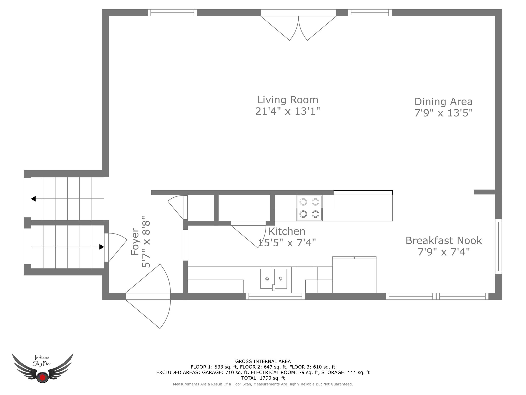
Floor Plans
Slideshow
Photo Grid
Hide
Previous
Next